Trending: 3 Bedroom Open-Concept Barndominium Plans
By Courtney Pittman
Drool-worthy wraparound porches, expansive garages with shops, casual gathering spaces…what’s not to love? These 3 bedroom open-concept barndominium plans feel timeless yet up-to-date. Here are eight great ones to check out.
Like what you see? Explore our collection of 3 bedroom open-concept barndominium plans here.
One-Story Barndominium Plan
One-Story Barndominium Plan - Front Exterior
One-Story Barndominium Plan - Main Level
Barndo goals! This must-have design exudes country charm with a wraparound porch, board-and-batten siding, and a gable roof. A big island with an eating bar separates the kitchen from the dining area and the great room. We love the vaulted ceiling.
The primary suite enjoys privacy. Everything has a place in the entry with lockers (just off the three-car garage).
Browse more barndominium plans here
Three-Bedroom Barndo Plan with Loft
Three-Bedroom Barndo Plan with Loft - Front Exterior
Three-Bedroom Barndo Plan with Loft - Main Level
Three-Bedroom Barndo Plan with Loft - Upper Level
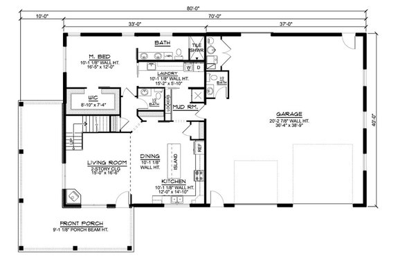
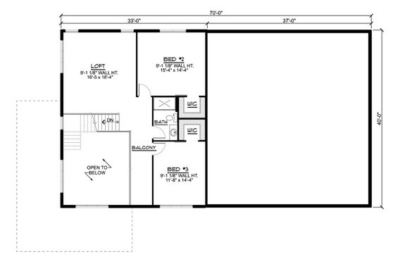
We are head-over-heels for this three-bedroom barn-inspired plan. With excellent flow and a rustic exterior, this barndominium floor plan combines old and new. The kitchen will become the center of activity, overlooking both the living room and the dining area.
Great for aging in place, the primary suite is located on the main level and gives you two sinks, a generous closet, and direct access to the laundry room. The second floor hosts two more bedrooms (each with a walk-in closet), a hall bath, and a loft. Don’t miss the mudroom with lockers and the two-car garage (with room for an RV).
Three-Car Garage
Three-Car Garage - Front Exterior
Inside and out, this three-bedroom floor plan shows off barndominium style with a wraparound porch and a free-flowing layout. The wide kitchen island is the perfect gathering spot for family and friends. Warm up next to the cozy wood-burning fireplace in the great room.
Two secondary bedrooms share a hall bath at the back of the plan, while the primary suite enjoys privacy on the left. You’ll find plenty of storage in the three-car garage.
Mudroom with Lockers
Mudroom with Lockers - Front Exterior
Mudroom with Lockers - Main Level
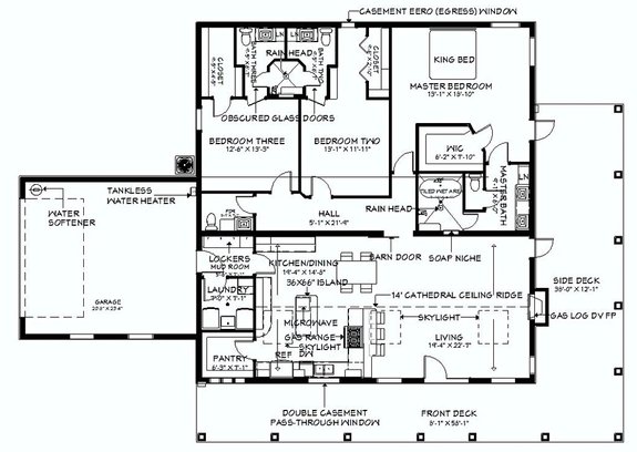
Ready to turn heads? A metal roof, three dormer windows, and a wraparound porch deliver loads of barndominium curb appeal. Don’t worry, inside is just as good. The main living area feels modern and breezy thanks to the cathedral ceiling with skylights.
Keep groceries neat and tidy in the sizable pantry. In the primary suite, the spa-like bath includes a tiled wet area. Other welcome amenities include a mudroom with lockers and a two-car garage.
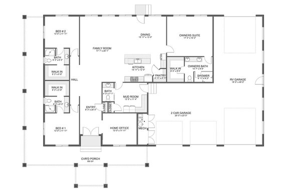
Room for an RV
Room for an RV - Front Exterior
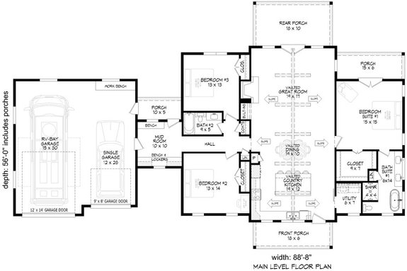
Looking for a plan with extra storage? Here ya go! This barndominium floor plan features a three-car garage with room for an RV. Other storage options include a walk-in closet in each bedroom, a spacious pantry in the kitchen, and a very generous mudroom.
Next to the entry, a home office could become a guest bedroom if needed. The main gathering areas feel contemporary and bright thanks to the open-concept layout. Unwind on the covered wraparound porch.
Under 2,000 Square Feet
Under 2,000 Square Feet - Front Exterior
Under 2,000 Square Feet - Main Level
Under 2,000 square feet, this barndo plan seals the deal with a clever layout that makes good use of space. For example, an island with an eating bar looks out to the great room, while the dining nook sits close by. Built-in cabinets and shelves highlight the walk-in pantry.
A large wraparound porch offers outdoor enjoyment. Other amenities include a handy mudroom, a two-car garage, and a luxurious primary suite.
Super-Open Layout
Super-Open Layout - Front Exterior
Super-Open Layout - Main Level
With a vaulted ceiling and an open-concept layout, this barndominium floor plan delivers function and ease. The open living spaces flow easily into the kitchen, where an island seats up to four. Front and rear porches are a nice touch.
Tucked away to the right of the plan, the primary suite grabs your attention with a lavish bath, substantial closet space, and a private porch. The two-car garage gives you an RV bay and a workbench.
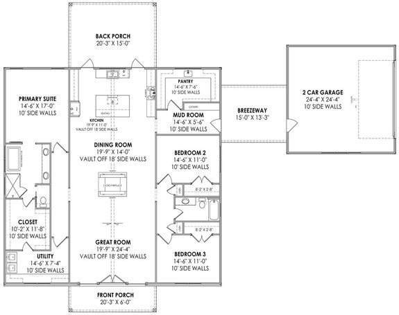
Barndo Plan with Breezeway
Barndo Plan with Breezeway - Front Exterior
Barndo Plan with Breezeway - Main Level
A prominent gable roof and a cute front porch deliver barn character to this plan. Inside, a two-sided fireplace sits between the great room and the dining area. Nearby, the open kitchen encourages modern living with an extra-spacious pantry and an island.
The well-organized mudroom (with lockers!) is ready to hold things. A breezeway connects the home to the two-car garage. On the left side of the plan, the primary suite accesses the laundry room.

