SAVED No Saved House Plans REGISTER LOGIN Empty Cart
BLOG
Our Favorites + Building Knowledge and Materials
Home>Articles

The Best House Plans Under 2,000 Sq. Ft.

The Best House Plans Under 2,000 Sq. Ft.
Explore our favorite small(ish) home designs.

The Best House Plans Under 2,000 Sq. Ft.

By Courtney Pittman

What do our best house plans under 2,000 sq. ft. have in common? These modestly-sized designs will have you smitten with up-to-date details like multi-use spaces, indoor/outdoor connections, and big-time curb appeal. Check out these eight plans (each less than 2,000 sq. ft.).

Want more? Browse small house plans here.

Farmhouse Plan with Sunroom Farmhouse Plan with Sunroom Farmhouse Plan with Sunroom - Front Exterior

Farmhouse Plan with Sunroom Farmhouse Plan with Sunroom - Main Level

Farmhouse Plan with Sunroom Farmhouse Plan with Sunroom - Upper Level

A welcoming front porch and a metal roof serve up classic farmhouse charm. Don’t worry, the layout inside is just as thoughtful. Bright and open, the great room flows seamlessly into the kitchen, where an island seats up to five.

Nearby, sliding glass doors in the dining room open to the covered back porch. The primary suite enjoys privacy on the right side of the plan and impresses with a freestanding tub, a large shower, and its own covered porch. Other highlights include a sunroom and a versatile bunkroom.

Barndominium Plan with Wraparound Porch Barndominium Plan with Wraparound Porch Barndominium Plan with Wraparound Porch - Front Exterior

Barndominium Plan with Wraparound Porch Barndominium Plan with Wraparound Porch - Main Level

Here’s a three-bedroom barndominium plan with country style. Note the wraparound porch and the gable roof. The island kitchen serves the great room and the dining area with an eating bar. The walk-in pantry features built-in shelving.

Check out the generous closet in the primary suite. Lockers keep you organized on the way in from the two-car garage.

See more barndominium plans here.

Stylish Accessory Dwelling Unit Plan Stylish Accessory Dwelling Unit Plan Stylish Accessory Dwelling Unit Plan - Front Exterior

Stylish Accessory Dwelling Unit Plan Stylish Accessory Dwelling Unit Plan - Garage Level

Stylish Accessory Dwelling Unit Stylish Accessory Dwelling Unit - Upper Level

In the market for an accessory dwelling unit (ADU)? Check out this stylish plan. Two sets of sliding glass doors create an effortless connection between the interior and the exterior. The covered deck gives you a comfortable place to enjoy outdoor living.

In the open great room, a vaulted ceiling lends a breezy vibe. The primary suite rests at the back of the plan, along with a secondary bedroom and a full bath. The first floor shows off a two-car garage.

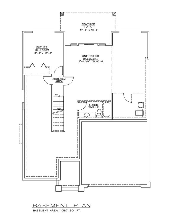
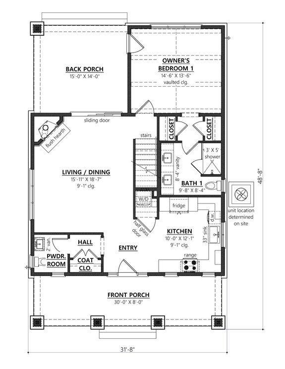
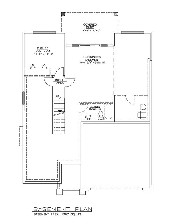
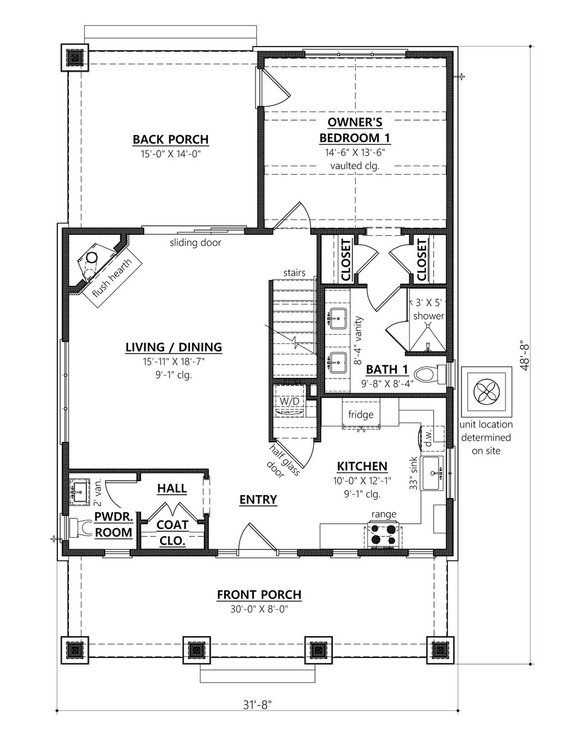
Efficient Plan with Unfinished Basement Efficient Plan with Unfinished Basement Efficient Plan with Unfinished Basement - Front Exterior

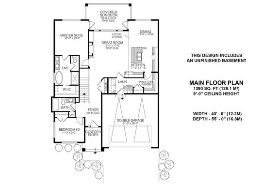
Efficient Plan with Unfinished Basement Efficient Plan with Unfinished Basement - Main Level

Efficient Plan with Unfinished Basement Efficient Plan with Unfinished Basement - Basement Level

This charming two-bedroom plan shows off farmhouse style with board-and-batten siding and cool rustic lighting details. Inside, the kitchen takes center stage with an island with an eating bar. Our favorite part? The walk-through pantry.

Oh, and don’t miss the built-in cubbies (with a seat) in the laundry room. The private primary suite offers access to the covered sundeck out back. Need room to expand? An unfinished basement can be finished now or later.

Loving any of the plans you're seeing? Register now to easily save and return to your favorites!

Farmhouse Design with Bonus Room Farmhouse Design with Bonus Room Farmhouse Design with Bonus Room - Front Exterior

Farmhouse Design with Bonus Room Farmhouse Design with Bonus Room - Main Level

Farmhouse Design with Bonus Room Farmhouse Design with Bonus Room - Upper Level

A timeless front porch? Check. A metal gable roof? You got it. This three-bedroom farmhouse plan has us drooling. A vaulted ceiling adds volume throughout the main living areas. Grab a snack at the kitchen island.

Just off the dining nook, French doors open to a covered patio. A study near the foyer offers a place to work from home. The two-car garage adds extra room for storage.

Can't get enough of the rustic look? See more farmhouse plans here.

Lavish Primary Suite Lavish Primary Suite Lavish Primary Suite - Front Exterior

Lavish Primary Suite Lavish Primary Suite - Main Level

Here’s a welcoming plan that delivers loads of charm with a metal roof accent and a wide front porch. The open floor plan combines the kitchen, the great room, and the dining room. A stylish barn door hides the walk-in pantry.

The lavish primary suite shows off a big shower with a seat, as well as direct access to the laundry room. Don’t miss the extra-generous rear porch.

Optional Outdoor Kitchen Optional Outdoor Kitchen Optional Outdoor Kitchen - Front Exterior

Optional Outdoor Kitchen Optional Outdoor Kitchen - Main Level

This home design offers a blend of country style and modern luxury. An open floor plan delivers a relaxed attitude. Check out the vaulted ceiling (with decorative beams) in the great room.

A spa-like bathroom and a sizable walk-in closet shine in the luxe primary suite. Ready for entertaining, the rear porch gives you an optional outdoor kitchen. Other highlights include a mudroom with lockers and a storage closet in the two-car garage.

Petite Two-Story Plan Petite Two-Story Plan Petite Two-Story Plan - Front Exterior

Petite Two-Story Plan Petite Two-Story Plan - Main Level

Petite Two-Story Plan Petite Two-Story Plan - Upper Level

This cute plan grabs your attention with two dormer windows and an inviting front porch. Inside, the layout wastes no space. Two closets keep clothes organized in the main-level primary suite.

A wall of sliding glass doors connects the living room to the back porch. A full bath sits between two secondary bedrooms on the second floor. Built-in storage cabinets are a welcome amenity.

Find your perfect small house plan.

The Best House Plans Under 2,000 Sq. Ft.

Today's Deals