- Jump to:
- All (4)
- Floor plans (2)
Phone: 1-888-447-1946
See our Terms & Conditions and Privacy Policy.
Use Code CTBFALL
Residential Construction Guide
Learn Building Basics
This downloadable, 26-page guide is full of diagrams and details about plumbing, electrical, and more.
PLAN 117-181
This plan can be customized
Tell us about your desired changes so we can prepare an estimate for the design service. Click the button to submit your request for pricing, or call 1-888-447-1946 for assistance.
Plan Description
Floor Plans
Full Specs & Features
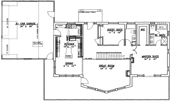
Dimension
Depth : 47' 6"
Height : 25' 5"
Width : 85' 8"
Area
Bonus: 458 sq/ft
First Floor: 1827 sq/ft
Garage: 806 sq/ft
Second Floor: 330 sq/ft
Ceiling
Main Ceiling : 9'
Upper Ceiling Ft : 10'
Roof
Primary Pitch : 10:12
Roof Framing : Truss
Exterior Wall Framing
Exterior Wall Finish : Siding/Stone
Framing : ICF
Bedroom Features
Guest Suite
Main Floor Master Bedroom
Walk In Closet
Kitchen Features
Eating Bar
Kitchen Island
Additional Room Features
Great Room Living Room
Loft
Garage Features
Oversized Garage
Side Entry Garage
Lot Characteristics
Suited For Corner Lot
Suited For View Lot
Outdoor Spaces
Balcony
More
Suited For Vacation Home
Rooms
Dining Room:
124 sq/ft width 9' x depth 13' 10"
Great Room:
384 sq/ft width 24' x depth 16'
Guest Suite:
117 sq/ft width 11' x depth 10' 8"
Kitchen:
143 sq/ft width 10' 6" x depth 13' 8"
Loft:
246 sq/ft width 17' x depth 14' 6"
Master Bedroom:
277 sq/ft width 18' 6" x depth 15'
What's Included In This Plan Set
- Foundation Plan(s): Footing locations, foundation details, etc.
- Floor Plan(s): Layout of floor plan, window/door schedule, interior and exterior dimensions
- Exterior Elevations: Exterior on all four sides, siding notes, roof pitches, garage door heights, etc.
- Overhead Roof Plan(s): A view of the home from above showing roof pitch, peaks, valleys, and other details.
- Cross Section(s): Cut-through view of home. Shows foundation, insulation, wall construction, ceiling heights, etc.
- Electrical Plan(s): Lighting, switches, electrical outlet placement throughout home.
- Detail Sheet(s): Additional structural details included in most log and ICF plans. Important: design loads and weather conditions vary by region. As a result the size, spacing, and layout of all structural elements in this home design may need approval by a structural engineer or code official based on your specific site location.
- Construction Notes / Detail(s): Referencing the entirety of the project.
- Framing Detail(s): Location of supporting walls and beams. Location/spacing of floor joists, floor framing details. Layout of roof, roof framing details, truss/rafter locations, connection details etc. If included, the framing layout is intended to be a suggested layout only. Design loads and weather conditions vary by region. As a result the size, spacing, and layout of all structural elements in this home design may need approval by a structural engineer or code official based on your specific site location.
Plan Set
$1100.75
$1100.75
$1695.75
Foundation
$0.00
Additional Options
$165.75
$140.25
$250.75
$33.15
$140.25
* Alternate Foundations may take time to prepare.
** Options with a fee may take time to prepare. Please call to confirm.
 
         
         
                 
                         
                         
                 
                 
                 
                 
                 
                 
                 
                