- Jump to:
- All (3)
- Floor plans (2)
Key Specs
3776
sq ft
4
Beds
3
Baths
2
Floors
2
Garages
Phone: 1-888-447-1946
See our Terms & Conditions and Privacy Policy.
Use Code CTBFALL
Residential Construction Guide
Learn Building Basics
This downloadable, 26-page guide is full of diagrams and details about plumbing, electrical, and more.
PLAN 117-167
This plan can be customized
Tell us about your desired changes so we can prepare an estimate for the design service. Click the button to submit your request for pricing, or call 1-888-447-1946 for assistance.
Plan Description
Floor Plans
Full Specs & Features
Dimension
Depth : 50'
Height : 21' 8"
Width : 84'
Area
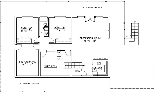
Basement Living: 1768 sq/ft
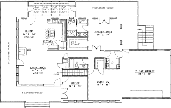
First Floor: 2008 sq/ft
Garage: 576 sq/ft
Roof
Primary Pitch : 8:12
Roof Framing : Truss
Exterior Wall Framing
Exterior Wall Finish : Siding
Framing : ICF
Bedroom Features
Main Floor Master Bedroom
Walk In Closet
Kitchen Features
Eating Bar
Kitchen Island
Walk In Pantry Cabinet Pantry
Additional Room Features
Hobby Rec Room Game Room
Storage Area
Sunroom
Wine Cellar
Workshop
Outdoor Spaces
Covered Front Porch
Covered Rear Porch
Screened Porch
Wrap Around Porch
More
Empty Nester
Rooms
Bedroom 2:
240 sq/ft width 15' 8" x depth 15' 4"
Bedroom 3:
140 sq/ft width 12' x depth 11' 8"
Bedroom 4:
138 sq/ft width 12' x depth 11' 7"
Dining Room:
195 sq/ft width 14' 6" x depth 13' 6"
Garage:
560 sq/ft width 23' 8" x depth 23' 8"
Living Room:
368 sq/ft width 21' 8" x depth 17'
Master Suite:
237 sq/ft width 15' 8" x depth 15' 2"
Office:
144 sq/ft width 12' x depth 12'
Recreation Room:
456 sq/ft width 19' 10" x depth 23'
Shop:
212 sq/ft width 12' x depth 17' 8"
Wet Bar:
78 sq/ft width 8' 8" x depth 9'
What's Included In This Plan Set
- Foundation Plan(s): Footing locations, foundation details, etc.
- Floor Plan(s): Layout of floor plan, window/door schedule, interior and exterior dimensions
- Exterior Elevations: Exterior on all four sides, siding notes, roof pitches, garage door heights, etc.
- Overhead Roof Plan(s): A view of the home from above showing roof pitch, peaks, valleys, and other details.
- Cross Section(s): Cut-through view of home. Shows foundation, insulation, wall construction, ceiling heights, etc.
- Electrical Plan(s): Lighting, switches, electrical outlet placement throughout home.
- Detail Sheet(s): Additional structural details included in most log and ICF plans. Important: design loads and weather conditions vary by region. As a result the size, spacing, and layout of all structural elements in this home design may need approval by a structural engineer or code official based on your specific site location.
- Construction Notes / Detail(s): Referencing the entirety of the project.
- Framing Detail(s): Location of supporting walls and beams. Location/spacing of floor joists, floor framing details. Layout of roof, roof framing details, truss/rafter locations, connection details etc. If included, the framing layout is intended to be a suggested layout only. Design loads and weather conditions vary by region. As a result the size, spacing, and layout of all structural elements in this home design may need approval by a structural engineer or code official based on your specific site location.
Plan Set
$1610.75
$1610.75
$2205.75
Foundation
$0.00
$0.00
Additional Options
$165.75
$140.25
$335.75
$33.15
$140.25
* Alternate Foundations may take time to prepare.
** Options with a fee may take time to prepare. Please call to confirm.
 
         
         
                 
                         
                         
                 
                 
                 
                 
                 
                 
                 
                