SAVED No Saved House Plans REGISTER LOGIN Empty Cart
Don't lose your saved plans!  Create an account to access your saves whenever you want. See our Terms & Conditions and Privacy Policy.
15% OFF FOR THE FIRST 25 CUSTOMERS

PLAN 120-215

Photographs may show modified designs.

Save
  • Jump to:
  • All (3)
  • Floor plans (2)
Questions? Get Personalized Help
Home  >  Style  >  Mediterranean

Key Specs


Plan Sq Ft

4629
sq ft

Plan Bedrooms

4
Beds

Plan Bathrooms

3.5
Baths

Plan Floors

2
Floors

Plan Garages

0
Garages

Select Plan Set Options

What's included?

Additional options

Dropdown arrow

Right-Reading Reverse
$208.25
Choose this option to reverse your plans and to have the text and dimensions readable.
Additional Construction Sets
$51.00/each
Additional hard copies of the plan (can be ordered at the time of purchase and within 90 days of the purchase date).
Additional Use License
$590.75
Allows you to build one more home for each additional license purchased.
Audio Video Design
$140.25
Receive an overlay sheet with suggested placement of audio and video components.
Comprehensive Material List
$335.75
A complete list of building supplies needed to construct the infrastructure of your new house, plus an overlay of materials shown directly on your PDF (foundation to rooftop with interior and exterior materials), and a detailed, itemized door and window schedule showing all sizes and types. Please allow 5-7 Business Days for completion. Note, the Comprehensive list is only available with a PDF purchase. The Comprehensive list can be ordered no matter what additional plan options you have selected.
Construction Guide
$33.15
Educate yourself about basic building ideas with these four detailed diagrams that discuss electrical, plumbing, mechanical, and structural topics.
Lighting Design
$140.25
Receive an overlay sheet with suggested placement of lighting fixtures.
Unlimited Use License
$590.75
Allows you to build this home as many times as you want.
Subtotal
$1795.00 NOW $1525.75
You save $269.25 (15% savings)
Sale ends soon!
Best Price Guaranteed*

Also order by phone: 1-888-447-1946
 
Questions about building your home?
Get Personalized Help
We do our best to get back to you within 24 - 48 business hours.
Need an answer faster? Call now...
Phone: 1-888-447-1946
Hours:
Ready for Your Call 7 Days a Week
Every Day 7 am - 8:30 pm Eastern

See our Terms & Conditions and Privacy Policy.

 
Wow!
Cost to Build Reports
Only $1.99 Right Now
Use Code CTB2026
Our Cost to Build Report gives you a personalized estimate for building your home, based on your location, plan, and materials.
Get Cost To Build Report
Limit one per order.

Residential Construction Guide

Learn Building Basics

This downloadable, 26-page guide is full of diagrams and details about plumbing, electrical, and more.

PLAN 120-215

This plan can be customized

Tell us about your desired changes so we can prepare an estimate for the design service. Click the button to submit your request for pricing, or call 1-888-447-1946 for assistance.

Modify This Plan

Plan Description


This mediterranean design floor plan is 4629 sq ft and has 4 bedrooms and 3.5 bathrooms.

Full Specs & Features


Dimension

Depth : 77'

Height : 32'

Width : 104'

Area

First Floor: 2966 sq/ft height 12'

Second Floor: 1663 sq/ft height 9'

* Total Square Footage typically only includes conditioned space and does not include garages, porches, bonus rooms, or decks.

Exterior Wall Framing

Exterior Wall Finish : Stone/Stucco

Framing : Wood - 2x4

Bedroom Features

Fireplace

Formal Dining Room

Walk In Closet

Kitchen Features

Breakfast Nook

Butler's Pantry

Kitchen Island

Kitchenette Wet Bar

Walk In Pantry Cabinet Pantry

Additional Room Features

Den Office Study Computer

Family Room Keeping Room

Hobby Rec Room Game Room

Master Sitting Area

Media Room

Workshop

Garage Features

Detached Garage

Outdoor Spaces

Covered Front Porch

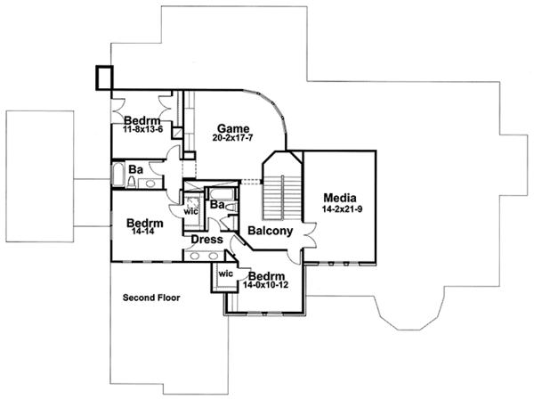
Rooms

Bedroom 2:

168 sq/ft width 14' x depth 12'

Bedroom 3:

196 sq/ft width 14' x depth 14'

Bedroom 4:

157 sq/ft width 11' 8" x depth 13' 6"

Breakfast Nook:

136 sq/ft width 13' 8" x depth 10'

Dining Room:

166 sq/ft width 14' 6" x depth 11' 6"

Entry:

87 sq/ft width 13' 6" x depth 6' 6"

Family Room:

440 sq/ft width 22' x depth 20'

Game Room:

354 sq/ft width 20' 2" x depth 17' 7"

Kitchen:

200 sq/ft width 16' x depth 12' 6"

Library:

195 sq/ft width 13' x depth 15'

Living Room:

196 sq/ft width 14' x depth 14'

Master Bedroom:

336 sq/ft width 20' 2" x depth 16' 8"

Media Room:

309 sq/ft width 14' 2" x depth 21' 10"

What's Included In This Plan Set


  • Floor Plans – ¼”=1’-0” scale floor plan indicating location of frame and masonry walls, support members, doors, windows, plumbing fixtures, cabinets, shelving, ceiling conditions and notes deemed relevant to this plan.
  • Exterior Elevations – All elevations at ¼” = 1’-0” scale in most cases. Some older designs may contain 1/8” scale side and rear elevations. Drawing will indicate overall configuration of home at each side view and make note of plate heights, roof overhangs, window header heights, roof pitches, materials used and extent to which they are used and enlargement of any details we feel necessary to explain the construction.
  • Building Sections – ¼” = 1’-0” building sections are included when there is no other reasonable way to indicate the volumetric/height conditions in the home. Most of this information can usually be determined from the exterior elevations.
  • Cabinet Elevations – 3/8” = 1’-0” scale elevations indicating configuration of cabinets, heights, widths, type of components used, cabinet material and finish, counter surfaces, appliances.
  • Framing Plans – ¼” – 1’-0” scale framing plans indicating size and spacing of members as well as bracing and blocking required for structural purposes. Local codes will most likely need to be consulted.
  • Foundation Plans – ¼” = 1’-0” scale foundation plans indicating location of structural walls, grade beams, reinforcing steel and structural columns. Consulting a local engineer is advisable as well as is analysis of soil conditions on site.
  • Electrical Plans – ¼” = 1’-0” scale schematic plans indicating location and types of electrical fixtures, switches, outlets, and how they are to be switched.
» See important information before purchasing.
Questions? Call 1-888-447-1946

Plan Set

PDF Set:
$1525.75
PDF plan sets are best for fast electronic delivery and inexpensive local printing.
5 Copy Set:
$1695.75
5 printed plan sets mailed to you.
5 Copy and PDF Set:
$1780.75
5 printed plan sets mailed to you plus PDF plan sets are best for fast electronic delivery and inexpensive local printing.
PDF Unlimited Build:
$2116.50
PDF plan sets are best for fast electronic delivery and inexpensive local printing.
Five Copy and PDF Set Unlimited Build:
$2371.50
5 printed plan sets mailed to you plus PDF plan sets are best for fast electronic delivery and inexpensive local printing.
CAD and PDF Set:
$2375.75
For use by design professionals to make substantial changes to your house plan and inexpensive local printing plus PDF plan sets are best for fast electronic delivery and inexpensive local printing.

Foundation

Slab:
$0.00
Ideal for level lot, single layer concrete poured directly on grade.
Crawlspace:
$165.75
Ideal for semi-sloped or level lot, home can be built off of grade, typically 18” - 48”.
Basement:
$335.75
Ideal for level lot, lower level of home partially or fully underground.
Walk Out Basement:
$420.75
Ideal for a sloping lot, lower level with outdoor access.

Framing

Wood 2x4:
$0.00
Wood 2x4 Exterior Walls
Wood 2x6:
$293.25
Wood 2x6 Exterior Walls

Additional Options

Right-Reading Reverse:
$208.25
Choose this option to reverse your plans and to have the text and dimensions readable.
Additional Construction Sets:
$51.00
Additional hard copies of the plan (can be ordered at the time of purchase and within 90 days of the purchase date).
Additional Use License:
$590.75
Allows you to build one more home for each additional license purchased.
Audio Video Design:
$140.25
Receive an overlay sheet with suggested placement of audio and video components.
Comprehensive Material List:
$335.75
A complete list of building supplies needed to construct the infrastructure of your new house, plus an overlay of materials shown directly on your PDF (foundation to rooftop with interior and exterior materials), and a detailed, itemized door and window schedule showing all sizes and types. Please allow 5-7 Business Days for completion. Note, the Comprehensive list is only available with a PDF purchase. The Comprehensive list can be ordered no matter what additional plan options you have selected.
Construction Guide:
$33.15
Educate yourself about basic building ideas with these four detailed diagrams that discuss electrical, plumbing, mechanical, and structural topics.
Lighting Design:
$140.25
Receive an overlay sheet with suggested placement of lighting fixtures.
Unlimited Use License:
$590.75
Allows you to build this home as many times as you want.

* Alternate Foundations may take time to prepare.

** Options with a fee may take time to prepare. Please call to confirm.

Unless you buy an “unlimited” plan set or a multi-use license you may only build one home from a set of plans. Please call to verify if you intend to build more than once. Plan licenses are non-transferable and cannot be resold.