- Jump to:
- All (8)
- Floor plans (3)
Key Specs
4894
sq ft
4
Beds
3.5
Baths
2
Floors
3
Garages
Phone: 1-888-447-1946
See our Terms & Conditions and Privacy Policy.
Use Code CTBFALL
Residential Construction Guide
Learn Building Basics
This downloadable, 26-page guide is full of diagrams and details about plumbing, electrical, and more.
PLAN 117-844
This plan can be customized
Tell us about your desired changes so we can prepare an estimate for the design service. Click the button to submit your request for pricing, or call 1-888-447-1946 for assistance.
Plan Description
Floor Plans
Full Specs & Features
Dimension
Depth : 75' 4"
Height : 31'
Width : 89' 6"
Area
Basement Living: 2019 sq/ft
Bonus: 384 sq/ft
First Floor: 2131 sq/ft
Garage: 860 sq/ft
Second Floor: 744 sq/ft
Roof
Primary Pitch : 7:12
Roof Framing : Truss
Roof Type : Shingle
Secondary Pitch : 10:12
Exterior Wall Framing
Exterior Wall Finish : Siding
Framing : ICF (Insulated Concrete Forms)
Bedroom Features
Fireplace
Formal Dining Room
Main Floor Master Bedroom
Split Bedrooms
Walk In Closet
Kitchen Features
Breakfast Nook
Kitchen Island
Walk In Pantry Cabinet Pantry
Additional Room Features
Den Office Study Computer
Family Room Keeping Room
Great Room Living Room
Hobby Rec Room Game Room
Main Floor Laundry
Media Room
Safe Room / Hidden Room
Vaulted / Cathedral Ceilings
Workshop
Outdoor Spaces
Courtyard
Covered Front Porch
Covered Rear Porch
Deck
Wrap Around Porch
Rooms
Bedroom 2:
width 11' x depth 13'
Bedroom 3:
width 11' x depth 13'
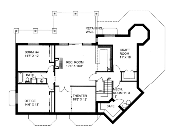
Bedroom 4:
width 14' 8" x depth 12'
Covered Front Porch:
208 sq/ft width 16' x depth 13'
Covered Rear Porch:
308 sq/ft width 22' x depth 14'
Craft Room:
width 11' x depth 16'
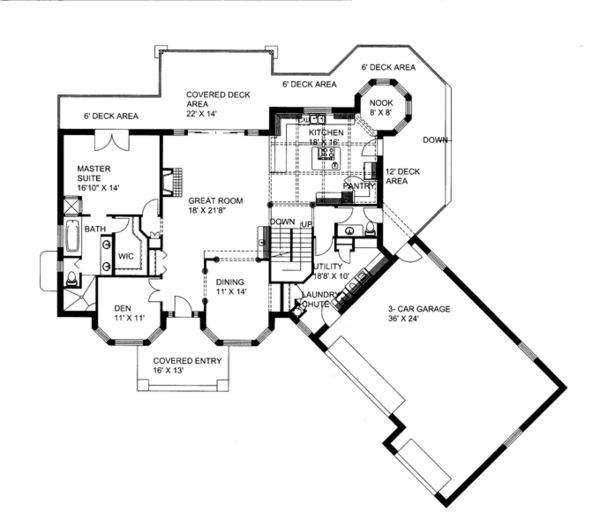
Den:
width 11' x depth 11'
Dining Room:
width 11' x depth 14'
Garage:
860 sq/ft width 36' x depth 24'
Great Room:
width 18' x depth 21' 8"
Home Office:
width 14' 6" x depth 13'
Kitchen:
width 18' x depth 16'
Master Suite:
width 16' 10" x depth 14'
Mechanical Room:
width 11' x depth 13'
Nook:
width 8' x depth 8'
Rec Room:
width 18' 8" x depth 19' 4"
Theater:
width 18' 8" x depth 12'
Unfinished Bonus Room:
384 sq/ft width 31' 8" x depth 12'
Utility Room:
width 18' 8" x depth 10'
What's Included In This Plan Set
- Foundation Plan(s): Footing locations, foundation details, etc.
- Floor Plan(s): Layout of floor plan, window/door schedule, interior and exterior dimensions
- Exterior Elevations: Exterior on all four sides, siding notes, roof pitches, garage door heights, etc.
- Overhead Roof Plan(s): A view of the home from above showing roof pitch, peaks, valleys, and other details.
- Cross Section(s): Cut-through view of home. Shows foundation, insulation, wall construction, ceiling heights, etc.
- Electrical Plan(s): Lighting, switches, electrical outlet placement throughout home.
- Detail Sheet(s): Additional structural details included in most log and ICF plans. Important: design loads and weather conditions vary by region. As a result the size, spacing, and layout of all structural elements in this home design may need approval by a structural engineer or code official based on your specific site location.
- Construction Notes / Detail(s): Referencing the entirety of the project.
- Framing Detail(s): Location of supporting walls and beams. Location/spacing of floor joists, floor framing details. Layout of roof, roof framing details, truss/rafter locations, connection details etc. If included, the framing layout is intended to be a suggested layout only. Design loads and weather conditions vary by region. As a result the size, spacing, and layout of all structural elements in this home design may need approval by a structural engineer or code official based on your specific site location.
Plan Set
$1950.75
$1950.75
$2545.75
Foundation
$0.00
Framing
$0.00
Additional Options
$165.75
$140.25
$335.75
$33.15
$140.25
* Alternate Foundations may take time to prepare.
** Options with a fee may take time to prepare. Please call to confirm.
 
         
         
                 
                         
                         
                         
                 
                 
                 
                 
                 
                 
                 
                 
                        